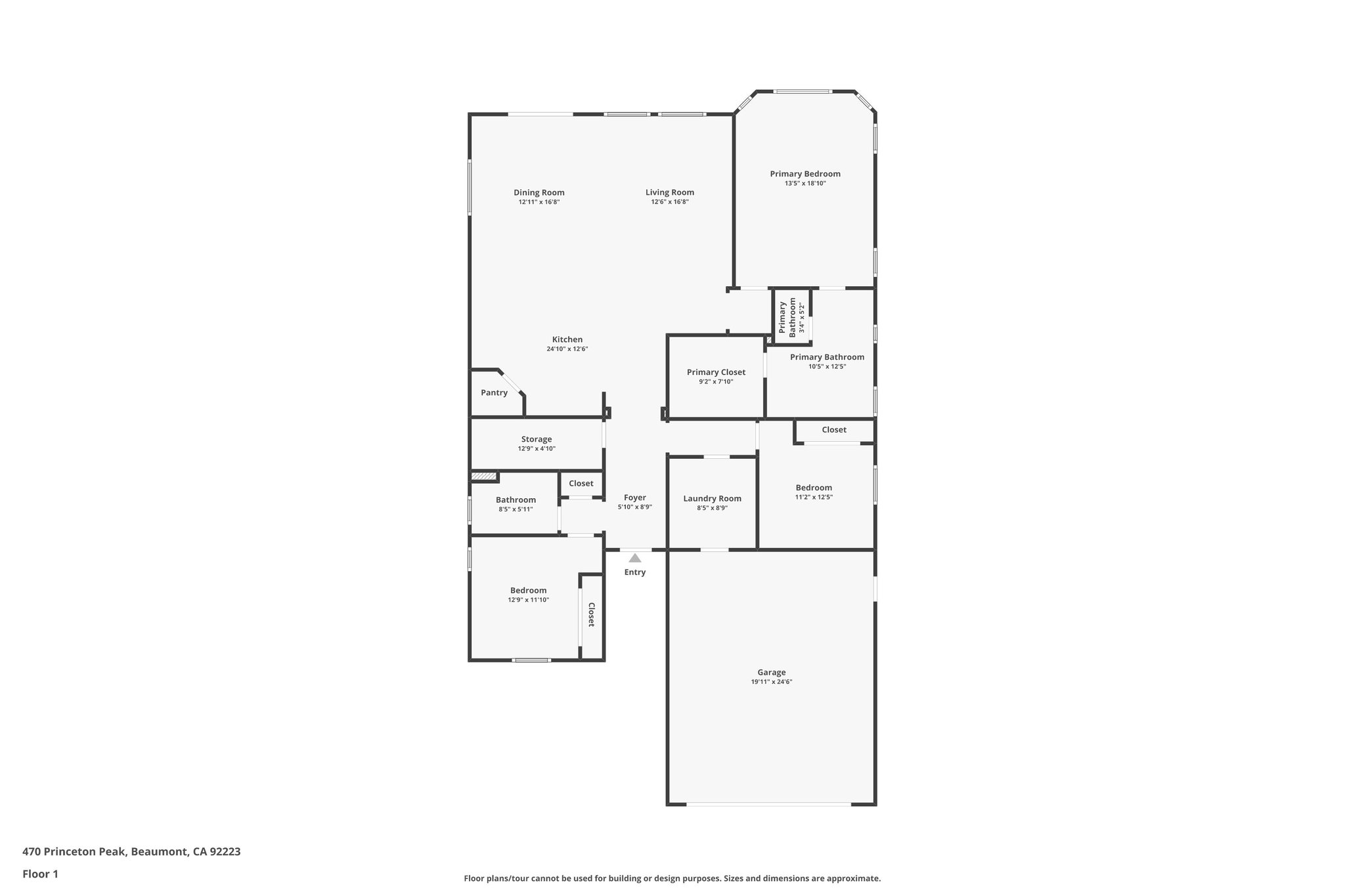
470 Princeton Peak
Beaumont, CA 92223
distanceFromTop ? true : false">
Details
Images
Floor Plans
3D Tour
Toggle Navigation
Images
Floor Plans
3D Tour
Map
Images
Show more
Slideshow
Photo Grid
Hide
Previous
Next
Floor Plans
Slideshow
Photo Grid
Hide
Previous
Next
3D Tour